当前位置:首页> 政务公开> 最新文件

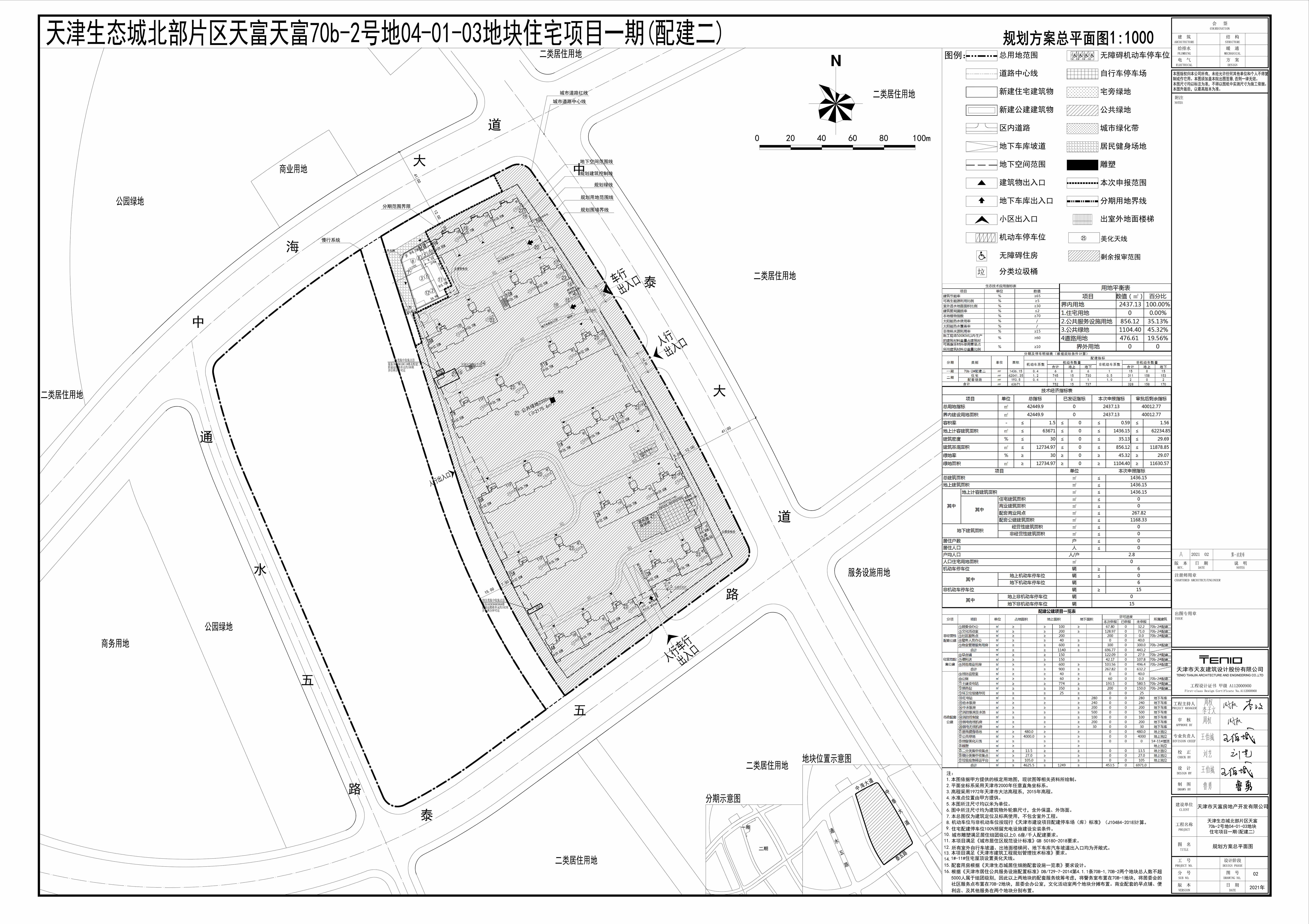
天富70b-2号地04-01-03地块住宅项目一期(配建二)总平面规划图纸公告的通知
发布日期: 2021-02-03 16:10      来源: 中新天津生态城
字号:
  • 扫一扫在手机打开当前页

          依据《中华人民共和国城乡规划法》和《关于印发<天津市城乡规划公开实施方案>的通知》的有关要求,现将该项目总平面规划图纸进行公告,征求利害关系人意见。公告时间为7个工作日。公告期限内,利害关系人可以书面等法定形式向我局进行陈述、申辩等主张或提出听证。


    主办单位:中新天津生态城管理委员会
    网站标识码:1201160010  |  备案序号:津ICP备09004013号  |   津公网安备 12019502000004
    联系方式:public@eco-city.gov.cn | 推荐使用IE8及以上版本浏览器浏览

    主办单位:中新天津生态城管理委员会
    网站标识码:1201160010
    备案序号:津ICP备09004013号
     津公网安备 12019502000004
    联系方式:public@eco-city.gov.cn | 推荐使用IE8及以上版本浏览器浏览