当前位置:首页> 政务公开> 最新文件

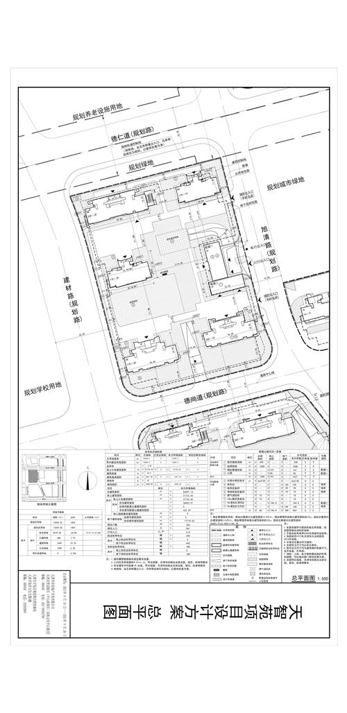
天智苑方案公示
发布日期: 2021-09-16 11:13      来源: 天津经济技术开发区
字号:
  • 扫一扫在手机打开当前页


    公示期间,如有意见请联系25202068。

    主办单位:天津经济技术开发区管理委员会
    网站标识码:1201160062  |  备案序号:津ICP备05001677号  |   津公网安备 12019002000128
    联系方式:xxgk@teda.gov.cn | 推荐使用IE8及以上版本浏览器浏览

    主办单位:天津经济技术开发区管理委员会
    网站标识码:1201160062
    备案序号:津ICP备05001677号
     津公网安备 12019002000128
    联系方式:xxgk@teda.gov.cn | 推荐使用IE8及以上版本浏览器浏览