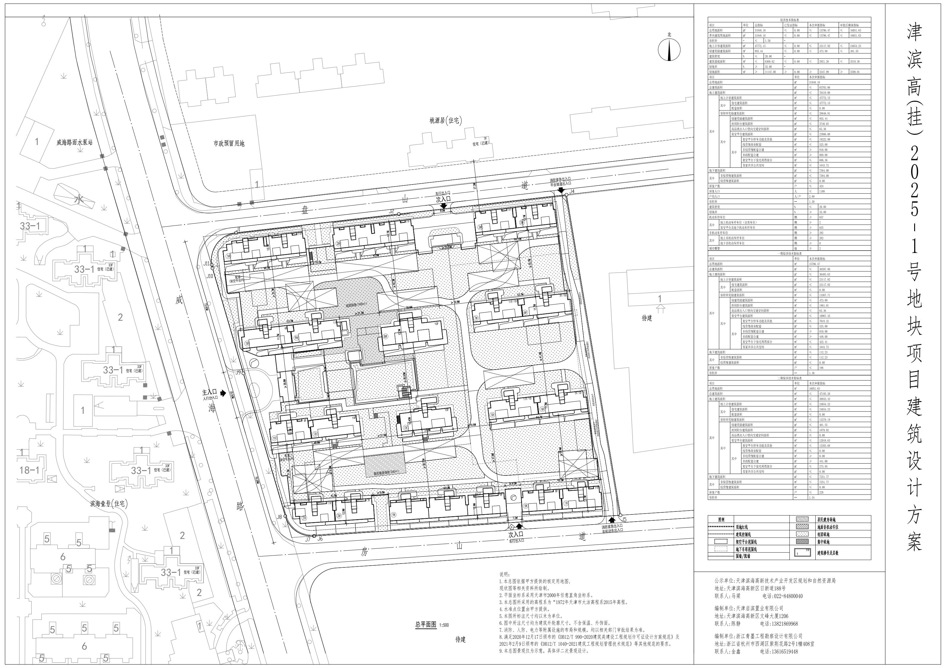
依据《中华人民共和国城乡规划法》和住建部《关于城乡规划公开公示的规定》的有关要求,现将天津启滨置业有限公司综合津滨高(挂)2025-1号地块项目建筑设计方案总平面图草案进行公示,公示时间共7个工作日。
以上信息均征得个人同意予以公布
高新区规资局
2025年9月24日
主办单位:天津滨海高新技术产业开发区 网站标识码:1201160063 | 备案序号:津ICP备09000137号-4 | 津公网安备 12019202000211 联系方式:gxqwxb@tht.gov.cn | 推荐使用IE8及以上版本浏览器浏览
主办单位:天津滨海高新技术产业开发区 网站标识码:1201160063备案序号:津ICP备09000137号-4 津公网安备 12019202000211 联系方式:gxqwxb@tht.gov.cn | 推荐使用IE8及以上版本浏览器浏览