| 关于天津市鸿达世纪安全卫生评价监测有限公司电子元件组装项目建筑设计方案总平面图(调整)的公示 |
依据《中华人民共和国城乡规划法》和住房和城乡建设部《关于城乡规划公开公示的规定》的有关要求,现将天津市鸿达世纪安全卫生评价监测有限公司电子元件组装项目建筑设计方案总平面图进行公示。
公示时间为2025年11月4日至2025年11月12日,为期七个工作日。
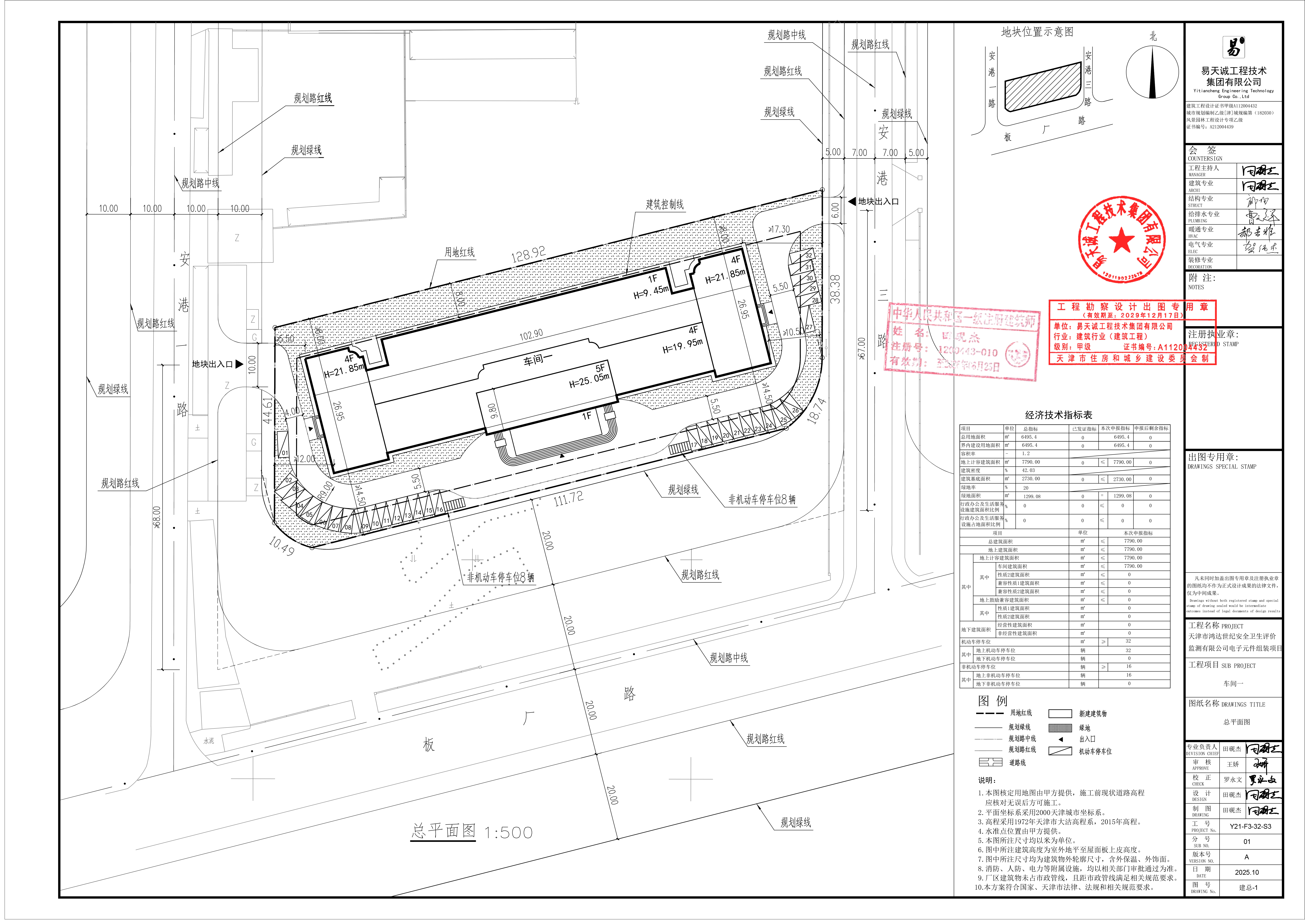
项目名称:天津市鸿达世纪安全卫生评价监测有限公司电子元件组装项目
项目位置:天津市滨海新区中塘镇安港路与板厂路交口西侧
建设单位:天津市鸿达世纪安全卫生评价监测有限公司
设计单位:易天诚工程技术集团有限公司
项目简介(变更说明):因施工图深化设计,将原来坡道调整为台阶。
本次调整仅限上述变化,项目其余设计内容保持原审定成果不变。
公示期间,周边单位及个人如对公示内容发表意见,请以电子邮件或电话方式反馈。
信函请寄:滨海新区于家堡融和路681号宝策大厦裙房行政许可服务中心
邮编:300450
联系人:邢燕
联系电话:022-66897974 (接听时间为 8:30—12:00,13:30-17:30)
邮 箱:gzjbhxqgs@163.com
天津市规划和自然资源局滨海新区分局
2025年11月4日
附图:建筑设计方案总平面图

主办单位:天津市规划和自然资源局滨海新区分局
推荐使用IE8及以上版本浏览器浏览
网站标识码:1201160001
联系方式:022-66223565