| 关于隆泰逸境项目建筑设计方案总平面图(调整)的公示 |
依据《中华人民共和国城乡规划法》和住房和城乡建设部《关于城乡规划公开公示的规定》的有关要求,现将隆泰逸境项目建筑设计方案总平面图进行公示。
公示时间为2025年6月25日至2025年7月3日,为期七个工作日。
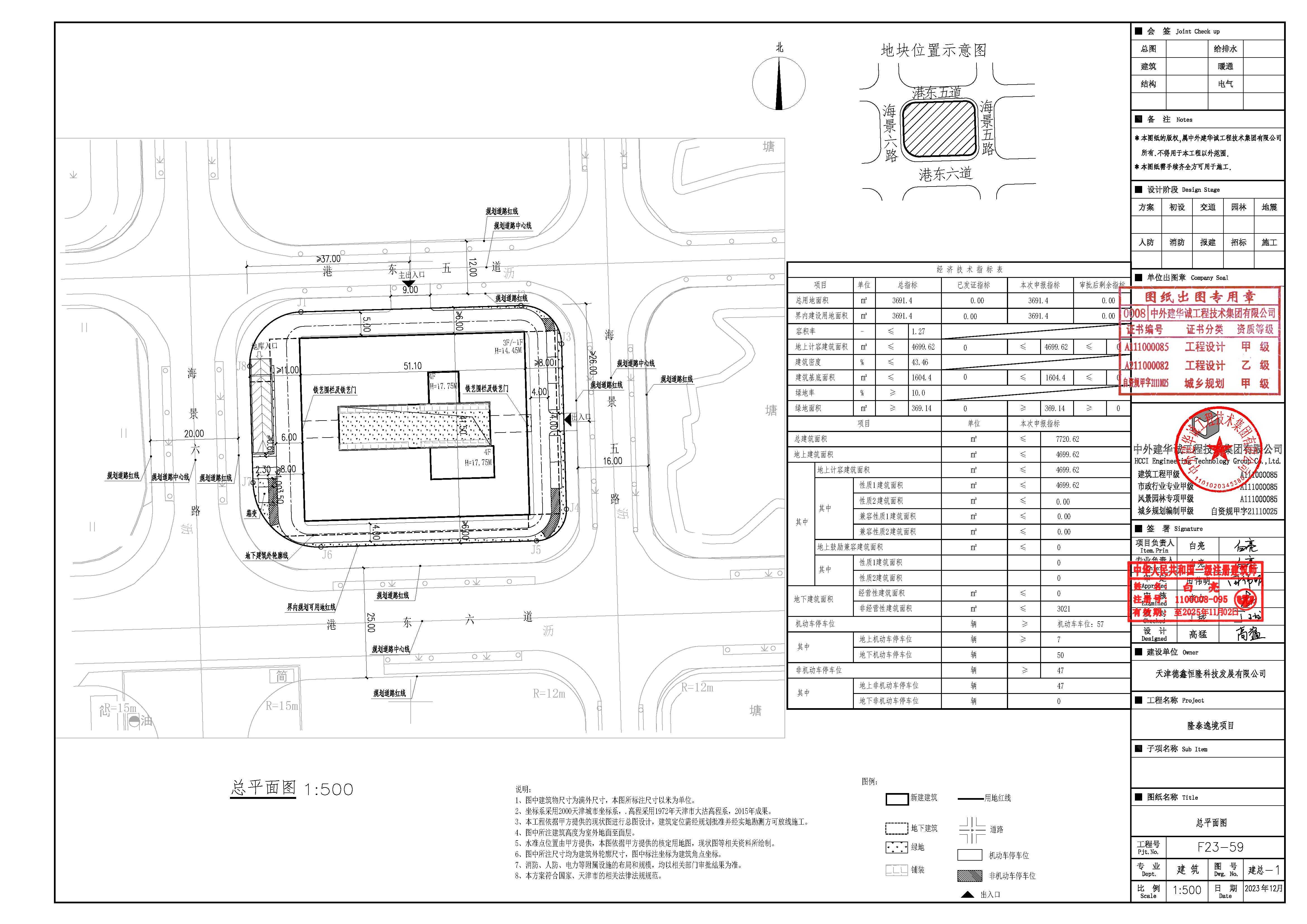
项目名称:隆泰逸境项目
项目位置:滨海新区大港海景六路以东、港东六道以北
建设单位:天津德鑫恒隆科技发展有限公司
设计单位:中外建华诚工程技术集团有限公司
项目简介(变更说明):由于实际生产需要和施工图深化设计的原因,现就总平图进行变更,变更如下:
1.在地块西南角增加一处箱变;
2.将地块东侧两个机动车停车位调整至西侧,机动车停车位数量不变。
3.地块东侧减少一部分非机动车停车位,在地块西侧补充减少的非机动车位,非机动车停车位总面积不变。
4.因箱变占用的绿地面积为8.05平米和因机动车和非机动车对调后所占用的绿地面积为6平米,共计减少绿地面积为14.05平米,在建筑中空位置补充绿地,补充绿地面积为14.05平米。
本次调整仅限上述变化,项目其余设计内容保持原审定成果不变。
公示期间,周边单位及个人如对公示内容发表意见,请以电子邮件或电话方式反馈。
信函请寄:滨海新区于家堡融和路681号宝策大厦裙房行政许可服务中心
邮编:300450
联系人:邢燕
联系电话:022-66897974 (接听时间为 8:30—12:00,13:30-17:30)
邮 箱:gzjbhxqgs@163.com
天津市规划和自然资源局滨海新区分局
2025年6月25日
附图:建筑设计方案总平面图

主办单位:天津市规划和自然资源局滨海新区分局
推荐使用IE8及以上版本浏览器浏览
网站标识码:1201160001
联系方式:022-66223565