| 关于大港实验中学新建女厕工程建筑设计方案总平面图的公示 |
依据《中华人民共和国城乡规划法》和住房和城乡建设部《关于城乡规划公开公示的规定》的有关要求,现将大港实验中学新建女厕工程建筑设计方案总平面图进行公示。
公示时间为2025年3月13日至2025年3月21日,为期七个工作日。
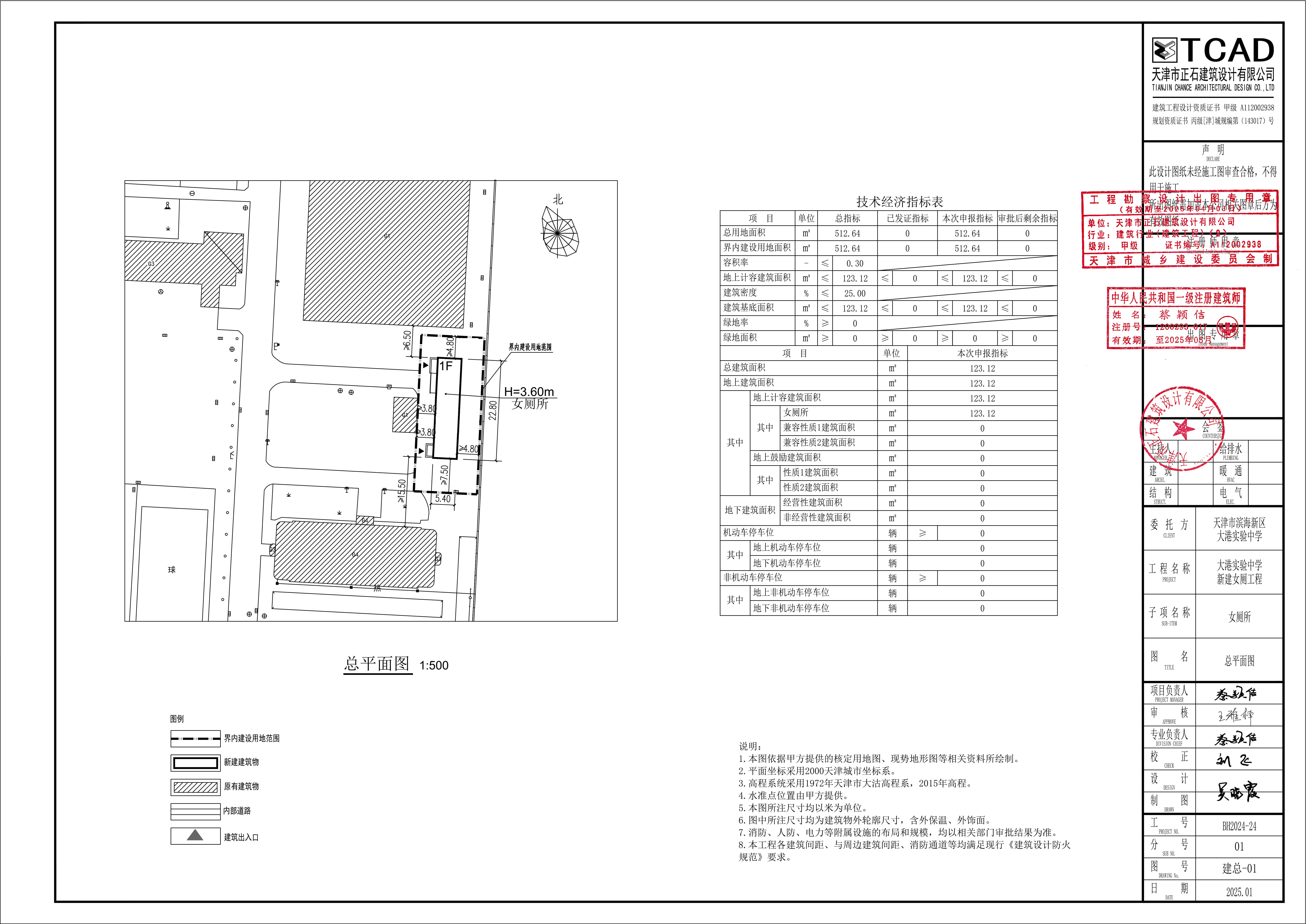
项目名称:大港实验中学新建女厕工程
项目位置:天津市滨海新区大港世纪大道191号
建设单位:天津市滨海新区大港实验中学
设计单位:天津市正石建筑设计有限公司
项目简介:本项目建设用地面积为512.64平方米,地上计容建筑面积为123.12平方米。
公示期间,周边单位及个人如对公示内容发表意见,请以电子邮件或电话方式反馈。
信函请寄:滨海新区于家堡融和路681号宝策大厦裙房行政许可服务中心
邮编:300450
联系人:邢燕
联系电话:022-66897974 (接听时间为 8:30—12:00,13:30-17:00)
邮 箱:gzjbhxqgs@163.com
天津市规划和自然资源局滨海新区分局
2025年3月13日
附图:建筑设计方案总平面图

主办单位:天津市规划和自然资源局滨海新区分局
推荐使用IE8及以上版本浏览器浏览
网站标识码:1201160001
联系方式:022-66223565